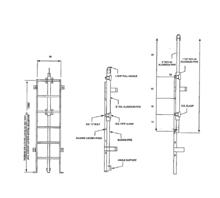
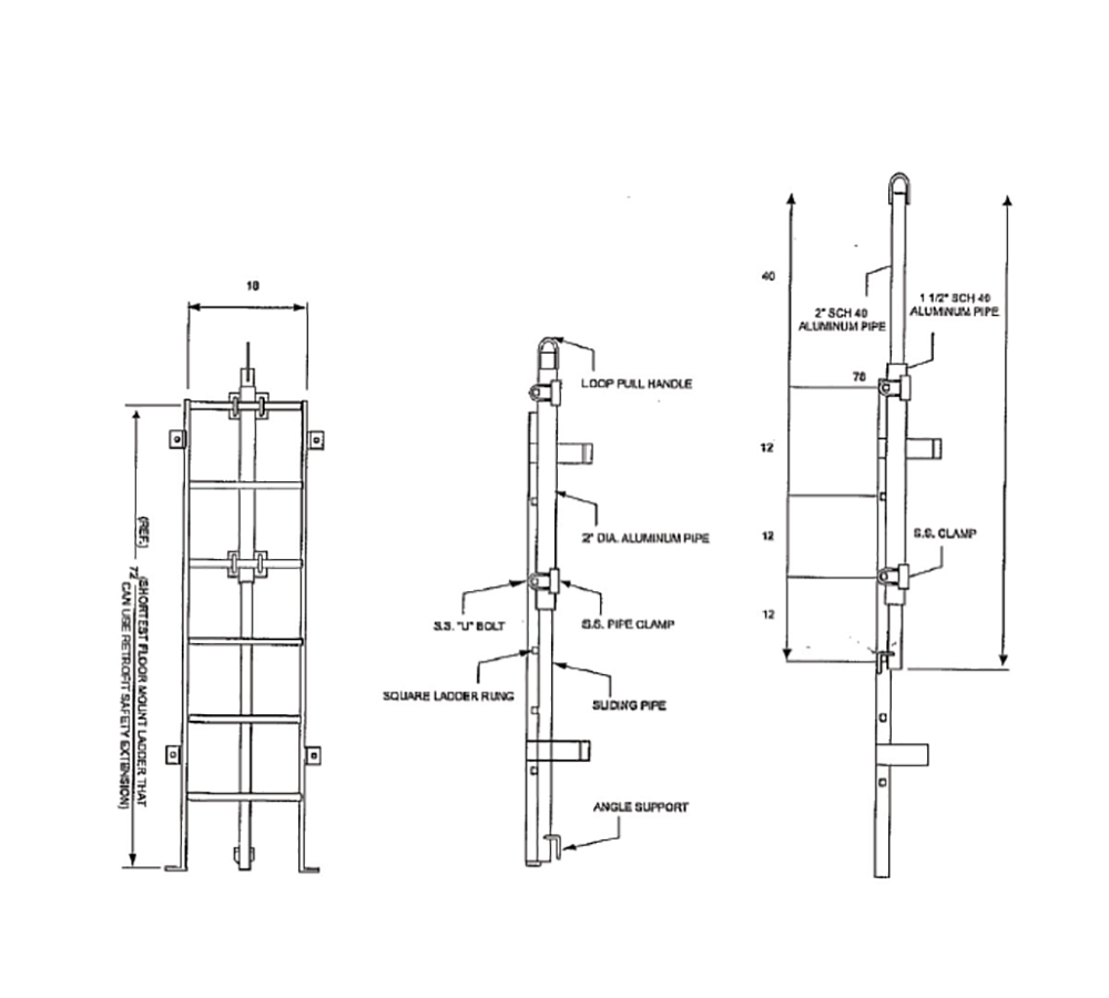
Telescoping Safety Post
FEATURES
Safety accessibility to roof areas through the Roof Hatch opening. Safety products are designed to be used with the Acudor Roof Hatch to allow safe use at all ti
ADDITIONAL INFORMATION
Components TSP-1: Telescoping Safety Post
Files to download
Last Modified: 2025-04-24
Share
Specifications
| SKU / Part # | Description | Price | QTY | Add to Cart |
|---|---|---|---|---|
| TSP-1 | Telescoping Safety Post |
---
|
|




